250 sqm office space with a balcony by Parliament

6900

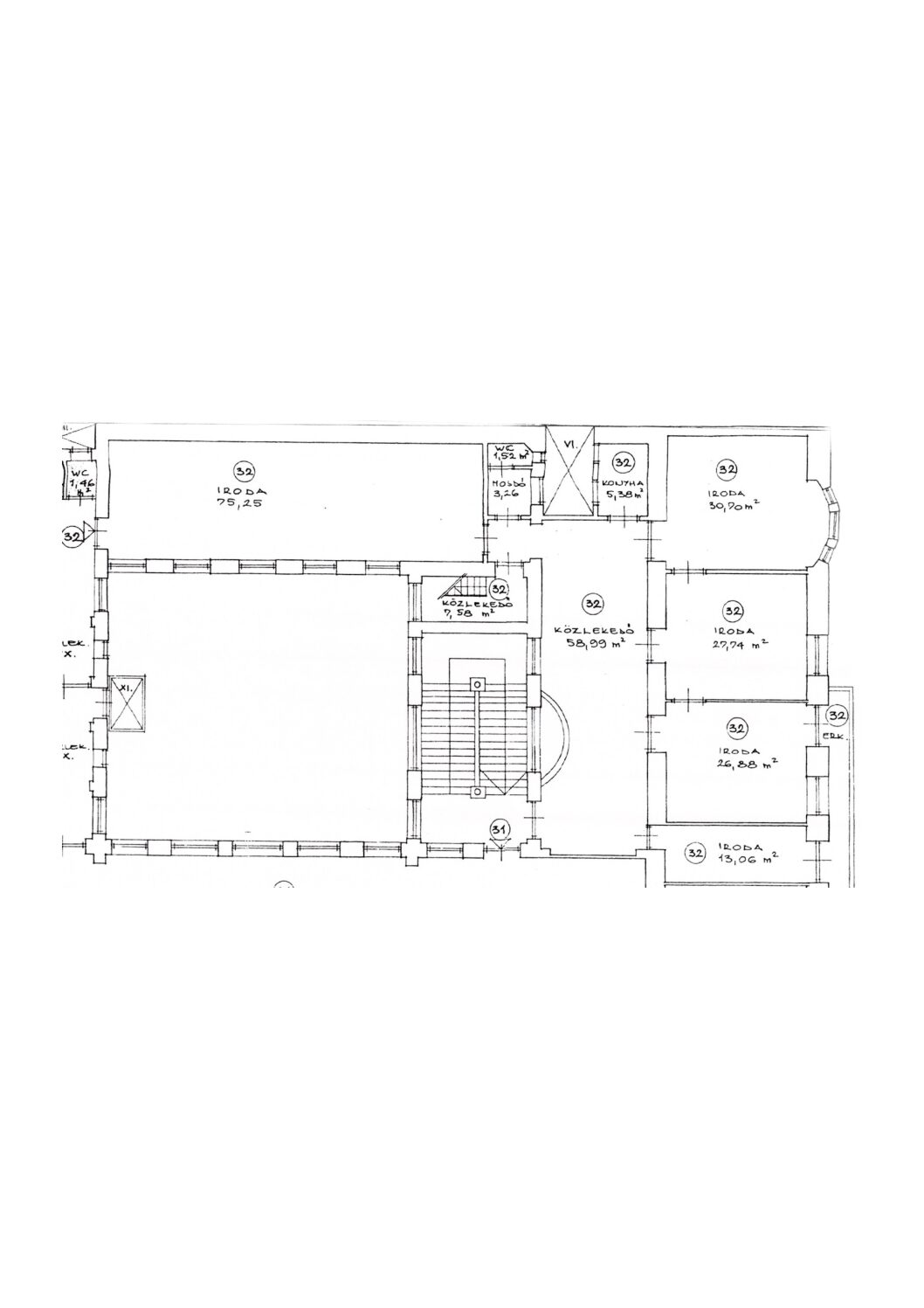
250 m2 5 2 Floor plan ID: 5662

Details

Type:
Office
District:
V. district
Address:
Nádor street
Common Cost:
75000 Ft
Floor:
2
Elevator:
Yes
Year built:
1911
Year of refurb:
2025
Condition:
Renovated
Furnished:
Not furnished
Heating:
  • Gas circo
  • Cooling heating AC
Parking:
nearby
View:
Street view
Orientation:
South East
Balcony / Terrace Size:
8
Pet:
Yes
Extras:
  • Alarm
  • Air conditioner

Contact me

Agnes Harmati

+36 30 943 4824
office@budapest-property.hu


After an extensive renovation this 250 sqm office space is available with balcony overlooking Vértanúk square. Deed sheet has office classification too.

Building:
Located nearby the Parliament. Building was designed by Artúr Meinig and built in 1901 for the Rimamurányi-Salgótarjáni Vasmű Rt back then. Walking into a grand hall and wrought iron staircase tell a story from the beginning of the last century. Now the entire building has mainly office spaces and two well-known restaurants, Türkiz and a stylish cocktail bar next to it. Facade of the building was renovated in 2023 which is now in a fabulous state, all surfaces are well maintained common areas, building with two elevators. wide staircases with state of art.

Parking:
There are two underground parking lots within a minute walk, one of them is right under the building.

Office space:
It was given a new kitchen, two bathrooms, both male and female, every room and corridors are freshly painted, the 8 sqm balcony is overlooking a leafy square called Vértanúk square.

Specifications:
2 entrance gates to the building
2 elevators
2 entrances of the property
Total of 8 air conditioner
Alarm
Outdoor security camera.
Monthly estimate overhead cost is HUF 300.000

Location:
Between Parliament and Liberty square, there are restaurants, parks, monuments. In terms of public transport, tram 2 and metro 2 (red line) are also a few minutes’ walk away. The street is a dead end one with limited traffic, noise level is more than bearable. Vértanúk square is a beautiful spot in Budapest, with lots of green, stunning architecture all around, benches for a lunch breaks.

Do you have questions?

Call or text me

Agnes Harmati

+36 30 943 4824
office@budapest-property.hu

    In relation to: